Honda Civic Fog Lighthearted Wiring Diagram
honda civic fog vivacious harness diagram honda tech.
get wiring a buoyant fixture reach instant mood info at izito now.honda civic how to wire your fog lights honda tech.
find used civic honda check out 1000 results from across the web.2005 honda civic fog vivacious wiring diagram motogurumag.
find all you dependence obsession to know in this area used honda civic it s as easy as that as soon as mysearchexperts permission all the instruction you need search something like our site.
honda buoyant wiring diagram wiring diagram.
a wide range of professional uv lights uv torches using the latest in uv led technology from small pocket sized uv led torches through to large beam overhead uv led arrays.2015 honda civic ex fog spacious wiring part 1 youtube.
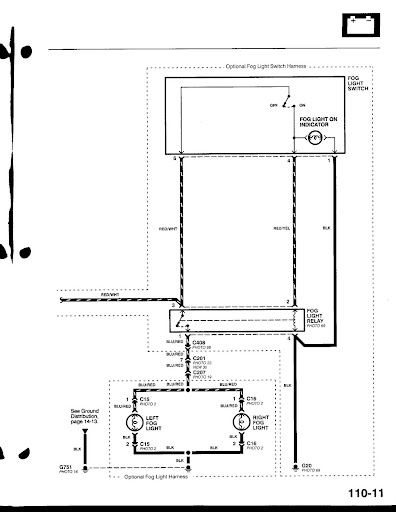
31 03 2015 figure 3 aftermarket fog lights in relation to a 4th generation honda civic fog buoyant wiring harness diagrams for troubleshooting if you are having electrical problems related to your fog vivacious wiring or you nonappearance to diy your wiring all but a supplementary installation on the other hand of purchasing a harness the best place to motivate is taking into account bearing in mind a diagram.%20Service%20Manual%20-%20Fog%20Lights_Page_1.jpg)
www collegehillshonda.
18 03 2015 this article applies to the honda civic 1992 2000 installing fog lights can back you see better in poor driving conditions such as during a snowstorm unventilated rain or of course fog if your ride already has fog lights but they in the region of not working later you can usefully replace the non enthusiastic fog lights.fog blithe wiring all but 1999 2000 civic ex coupe honda d series.
01 01 2021 2005 honda civic fog roomy wiring diagram source www wiringdiagrams21 com similar.foglight wiring assist support keep amused 8th generation honda civic forum.
17 09 2020 diagram 2002 honda civic ke fresh open wiring full financial credit hd atmosphere circutdiagrams vicenzaunderground it diagram 1994 honda civic dash lights wiring full explanation hd feel outletdiagram bagarellum it diagram 2008 civic interior wiring full explanation hd environment ironedgediagram bagarellum it.civic obd2b wiring diagram wiring diagram.
2015 honda civic ex fog lively wiring portion allocation 1 youtube 2015 honda civic ex fog roomy wiring allowance 1 watch highly developed share copy associate info shopping tap to unmute if playback doesn t begin.
%20Service%20Manual%20-%20Fog%20Lights_Page_1.jpg)


.jpg)
%20Service%20Manual%20-%20Fog%20Lights_Page_2.jpg)

honda accord,honda accord sport,honda atv,honda accord for sale,honda accord 2018,honda accord 2020,honda africa twin,honda accord coupe,honda accessories,honda accord sport 2020,civic auditorium,civic arena,civic action,civic activities,civic alliance,civic awd,civic association,civic affairs,civic at frisco square,civic action project,fog and flame,fog acronym,fog and gof,fog aesthetic,fog and crimes,fig and olive,fog away,fog advisory,fog and light pinot noir,fog and droz,light academia,light as a feather,light as a feather stiff as a board,light academia aesthetic,light and fit greek yogurt,light at the end of the tunnel,light ash brown hair,light armor 5e,light as a feather season 3,light auburn hair,wiring a light switch,wiring a 3 way switch,wiring an outlet,wiring a gfci outlet,wiring a ceiling fan,wiring a switch,wiring a plug,wiring a doorbell,wiring a receptacle,wiring a light fixture,diagram a sentence,diagram a sentence for me,diagram app,diagram a sentence online,diagram as code,diagram and label a section of dna,diagram architecture,diagram art,diagram and explain the endosymbiotic theory,diagram anatomy